Dům a3, A4

Objevte dokonalou kombinaci pohodlí, stylu a klidného bydlení v přírodě.
Dokonalá
kombinace
pohodlí, stylu
a klidného bydlení
v přírodě.

RODINNÉ
DOMY
NEDVĚZÍ

PRAHA 10

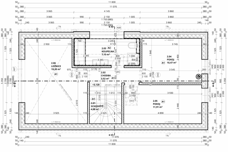
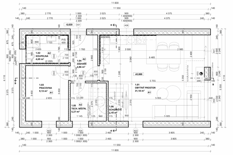
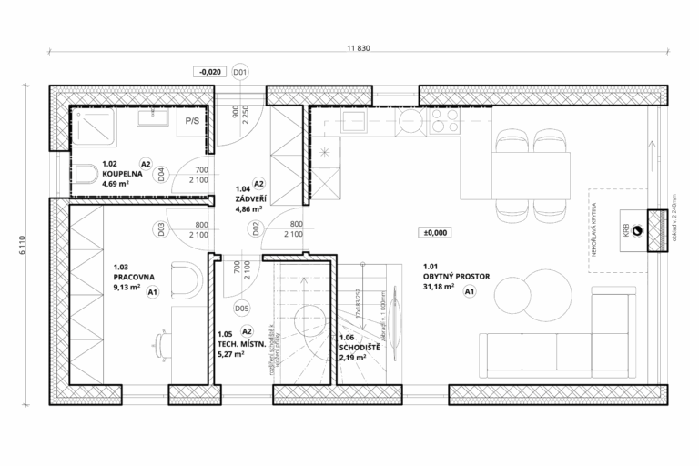
5 + KK
(2 koupelny)
© Green Living Park s.r.o.