Objevte dokonalou kombinaci pohodlí, stylu a klidného bydlení v přírodě.
Dokonalá
kombinace
pohodlí, stylu
a klidného bydlení
v přírodě.
kombinace
pohodlí, stylu
a klidného bydlení
v přírodě.
RODINNÉ
DOMY
NEDVĚZÍ
PRAHA 10
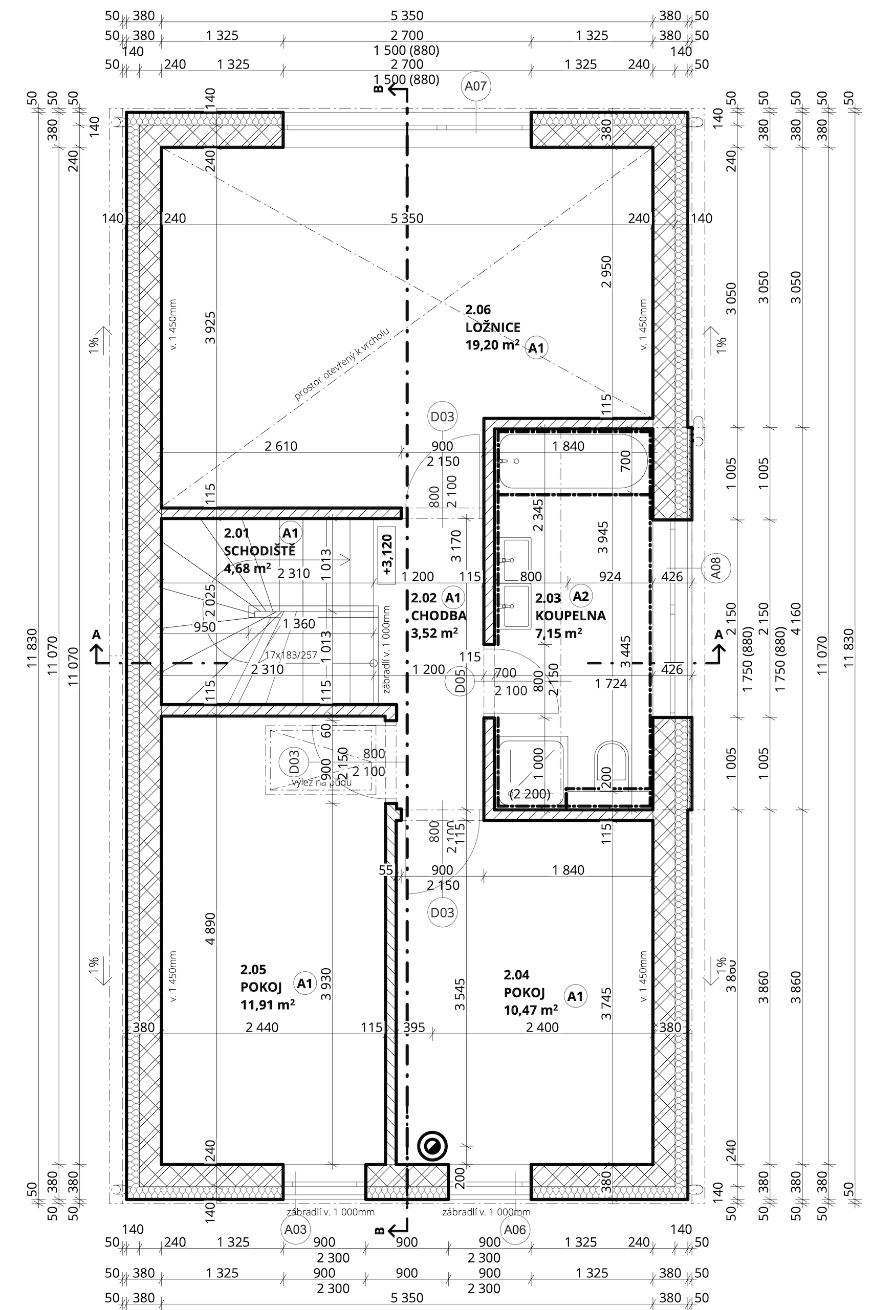
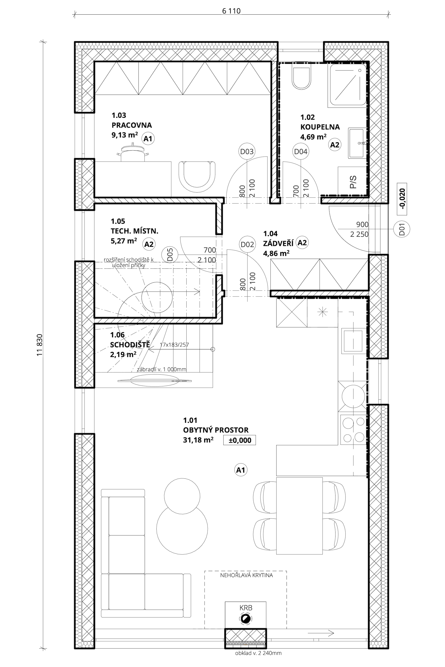
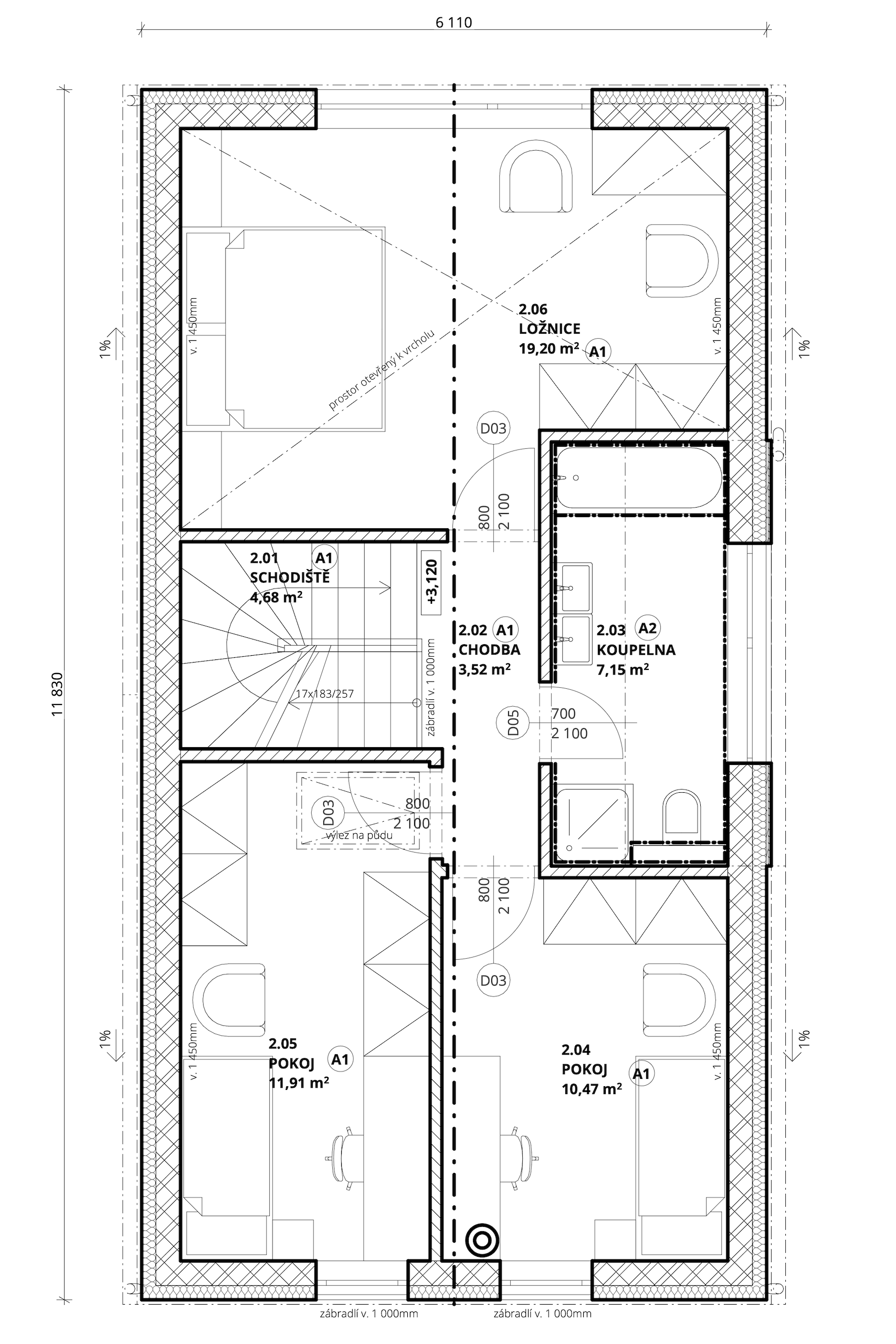
5 + KK
(2 koupelny)
(2 koupelny)
© Green Living Park s.r.o.





